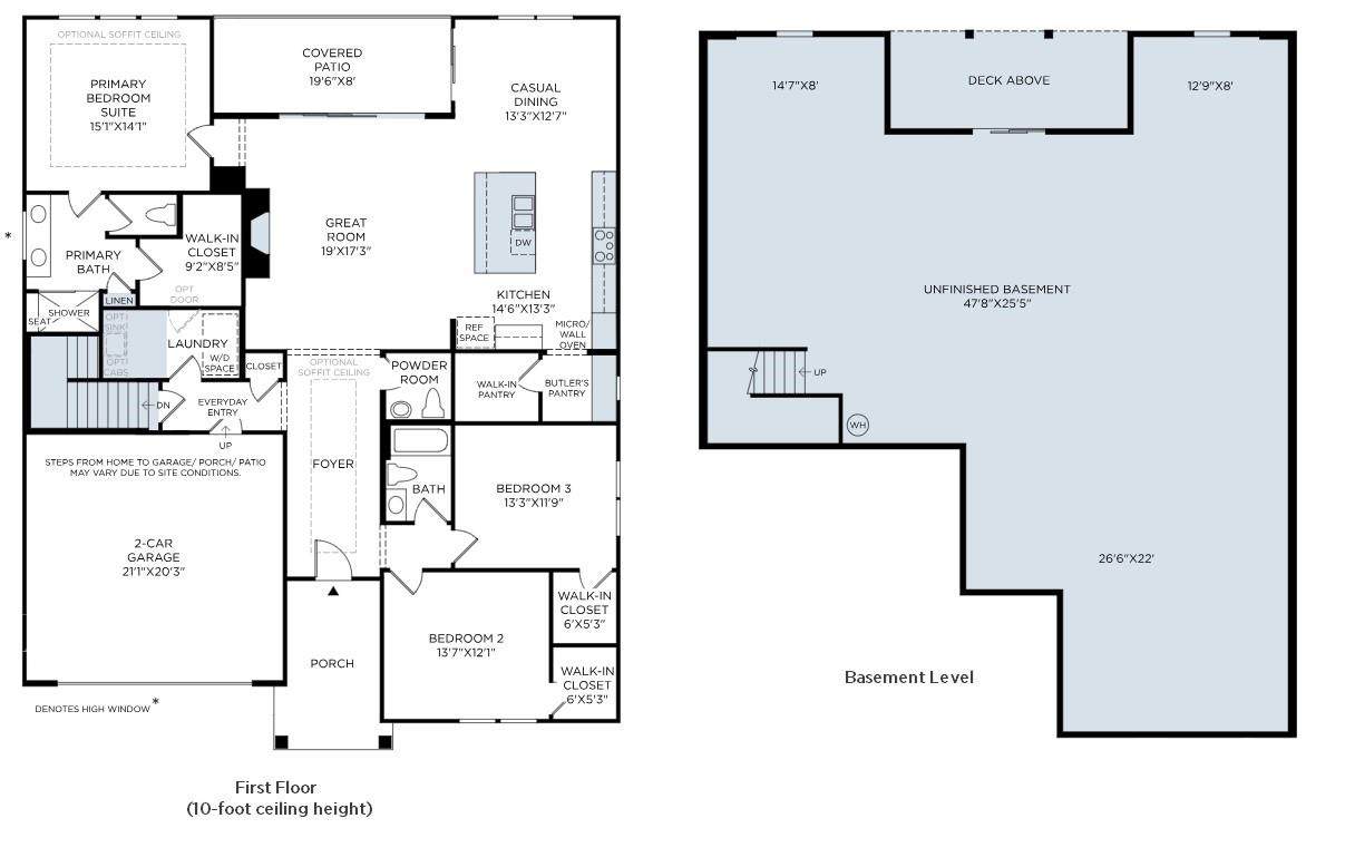
Description
A bright, expansive great room is the heart of the Badin. The casual dining area and large rear covered patio are overlooked by the well-appointed kitchen, complemented by a large center island with breakfast bar, plenty of counter and cabinet space, a sizable walk-in pantry, and a convenient workspace. Highlighting the beautiful primary bedroom suite are an ample walk-in closet and spa-like primary bath with dual vanities, a large luxe shower with seat, linen storage, and a private water closet. Large secondary bedrooms offer versatile entertaining and living options and shared hall bath. Additional highlights include a convenient powder room and everyday entry, easily accessible laundry, and ample additional storage. Full Walkout Basement ready to finish with windows, 6' sliding door, plumbing rough in and 100 amp electrical panel. Located in The Pines at Sugar Creek, a vibrant 55+ community designed for low-maintenance living and an active lifestyle. Community amenities are underway & include a pool, spa, pickleball, tennis & bocce courts, fitness center, clubhouse & more. Prices subject to change.
-
3BEDS
-
0.2ACRES
-
2BATHS
-
11/2 BATHS
-
2,013SQFT
-
$397$/SQFT
School Information
Offered by Toll Brothers Real Estate Inc: 704-849-2625. Copyright 2026 Canopy MLS. All rights reserved.Description
A bright, expansive great room is the heart of the Badin. The casual dining area and large rear covered patio are overlooked by the well-appointed kitchen, complemented by a large center island with breakfast bar, plenty of counter and cabinet space, a sizable walk-in pantry, and a convenient workspace. Highlighting the beautiful primary bedroom suite are an ample walk-in closet and spa-like primary bath with dual vanities, a large luxe shower with seat, linen storage, and a private water closet. Large secondary bedrooms offer versatile entertaining and living options and shared hall bath. Additional highlights include a convenient powder room and everyday entry, easily accessible laundry, and ample additional storage. Full Walkout Basement ready to finish with windows, 6' sliding door, plumbing rough in and 100 amp electrical panel. Located in The Pines at Sugar Creek, a vibrant 55+ community designed for low-maintenance living and an active lifestyle. Community amenities are underway & include a pool, spa, pickleball, tennis & bocce courts, fitness center, clubhouse & more. Prices subject to change.
Based on information submitted to the MLS GRID as of 2026-03-16T09:33:49.77 UTC. All data is obtained from various sources and may not have been verified by broker or MLS GRID. Supplied Open House Information is subject to change without notice. All information should be independently reviewed and verified for accuracy. Properties may or may not be listed by the office/agent presenting the information.The data relating to real estate on this Web site derive in part from the Canopy MLS IDX program. Brokers make an effort to deliver accurate information, but buyers should independently verify any information on which they will rely in a transaction. All properties are subject to prior sale, change or withdrawal. Neither MOVE Asheville Realty nor any listing broker shall be responsible for any typographical errors, misinformation, or misprints, and they shall be held totally harmless from any damages arising from reliance upon this data. This data is provided exclusively for consumers' personal, non-commercial use and may not be used for any purpose other than to identify prospective properties they may be interested in purchasing. © 2026 Canopy MLS.
“Listings courtesy of Canopy MLS as distributed by MLS GRID
Some IDX listings have been excluded from this website.
Digital Millennium Copyright Act
