Description
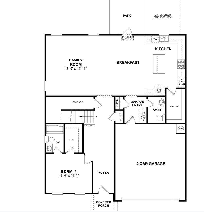
Welcome to the Savoy! Walking in from your covered porch, you are greeted with an inviting foyer complete with easily maintainable EVP flooring that continues throughout the main areas. Just off to the side is a guest suite with a private bathroom to ensure your guests have plenty of privacy. Continuing on, you'll walk into your open kitchen, family room & breakfast area. The kitchen is fit for a chef, with a walk in pantry, stainless steel appliances, quartz countertops & an island for extra prep space. The large family room allows enough room to fit a sectional and other furniture. Walk through the rear door to find an extended patio, perfect for entertaining or morning coffees. Head upstairs & you'll find a spacious loft perfect for an additional living space or game room. The two secondary bedrooms have a full shared bathroom located between them to allow for easy access. A centrally located laundry room will ensure laundry days are a breeze. Walking into the Owner's suite you will feel like royalty, with natural lighting and plenty of space to fit a king size bed as well as other furniture. The en-suite features a dual vanity, separate tub and tiled shower as well as a private toilet area to ensure everyone has enough space and privacy to get ready in the mornings. Finally the walk-in closet is sure to accommodate any size wardrobe. Welcome to your new home!
-
4BEDS
-
0.16ACRES
-
3BATHS
-
11/2 BATHS
-
3,112SQFT
-
$137$/SQFT
School Information
Offered by M/I Homes: 704-376-9800. Copyright 2026 Canopy MLS. All rights reserved.Description
Welcome to the Savoy! Walking in from your covered porch, you are greeted with an inviting foyer complete with easily maintainable EVP flooring that continues throughout the main areas. Just off to the side is a guest suite with a private bathroom to ensure your guests have plenty of privacy. Continuing on, you'll walk into your open kitchen, family room & breakfast area. The kitchen is fit for a chef, with a walk in pantry, stainless steel appliances, quartz countertops & an island for extra prep space. The large family room allows enough room to fit a sectional and other furniture. Walk through the rear door to find an extended patio, perfect for entertaining or morning coffees. Head upstairs & you'll find a spacious loft perfect for an additional living space or game room. The two secondary bedrooms have a full shared bathroom located between them to allow for easy access. A centrally located laundry room will ensure laundry days are a breeze. Walking into the Owner's suite you will feel like royalty, with natural lighting and plenty of space to fit a king size bed as well as other furniture. The en-suite features a dual vanity, separate tub and tiled shower as well as a private toilet area to ensure everyone has enough space and privacy to get ready in the mornings. Finally the walk-in closet is sure to accommodate any size wardrobe. Welcome to your new home!
Based on information submitted to the MLS GRID as of 2026-03-15T06:35:13.523 UTC. All data is obtained from various sources and may not have been verified by broker or MLS GRID. Supplied Open House Information is subject to change without notice. All information should be independently reviewed and verified for accuracy. Properties may or may not be listed by the office/agent presenting the information.The data relating to real estate on this Web site derive in part from the Canopy MLS IDX program. Brokers make an effort to deliver accurate information, but buyers should independently verify any information on which they will rely in a transaction. All properties are subject to prior sale, change or withdrawal. Neither MOVE Asheville Realty nor any listing broker shall be responsible for any typographical errors, misinformation, or misprints, and they shall be held totally harmless from any damages arising from reliance upon this data. This data is provided exclusively for consumers' personal, non-commercial use and may not be used for any purpose other than to identify prospective properties they may be interested in purchasing. © 2026 Canopy MLS.
“Listings courtesy of Canopy MLS as distributed by MLS GRID
Some IDX listings have been excluded from this website.
Digital Millennium Copyright Act
